QUIENES SOMOS
CAELUM
Somos un vigoroso equipo dedicado a la concepción de viviendas unifamiliares. Con más de 15 años de trayectoria en el sector de la construcción, contamos con el compromiso profesional y vasta experiencia garantizando la calidad y durabilidad de cada uno de nuestros proyectos.
Nuestro enfoque está en ofrecer un hogar que brinde seguridad, comodidad y un sentido de pertenencia. Comprendiendo que las necesidades de las familias modernas están en constante evolución, nos comprometemos a innovar en cada diseño, incorporando soluciones que maximicen la eficiencia espacial. Nuestra mirada se fija en la creación de espacios versátiles que se adaptan a las diferentes dinámicas familiares, fomentando un estilo de vida práctico y funcional.
Cada uno de nuestros diseños tienen la versatilidad de adaptarse a las necesidades específicas de cada familia, permitiendo personalizaciones que reflejen su estilo de vida y preferencias, estudiando en profundidad las diversas tipologías constructivas, producimos recursos de alto calibre y calidad, desde la distribución de espacios hasta la elección de materiales. Creemos firmemente que una vivienda debe ser un cobijo que ofrezca tranquilidad y bienestar a quienes lo habitan.
NUESTRA HISTORIA
TECHSYS
En Techsys, nos dedicamos a la construcción de naves industriales, ofreciendo soluciones completas que van desde la ingeniería hasta la entrega final de proyectos que marcan la diferencia. Con más de 15 años en el sector, somos reconocidos por nuestra eficienciay precisión en cada obra que emprendemos.
A lo largo de nuestra trayectoria, hemos trabajado con empresas multinacionales y nacionales líderes en sus sectores, aportando estructuras industriales adaptadas a las exigencias del mercado actual. Nuestro equipo se destaca por implementar metodologías que maximizan los recursos y tiempos de ejecución, asegurando la durabilidad y el rendimiento óptimo de cada uno de nuestros proyectos.
Como parte de nuestra evolución y crecimiento, surge Caelum Studio, una división especializada que nace de Techsys para enfocar nuestras capacidades en el diseño y desarrollo de proyectos unifamiliares. Esta nueva área aprovecha nuestra vasta experiencia en el sector industrial para aplicar los más altos estándares de ingeniería y construcción en el ámbito residencial.
Con Caelum Studio, expandimos nuestro enfoque para brindar diseños residenciales que inspiren y construcciones que perduren.
VIVIENDAS UNIFAMILIARES
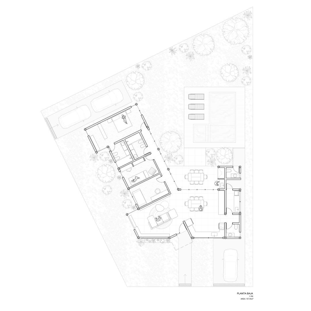
Ubicación: Barrio El Aljibe, Manzanares, Pilar. Provincia de Buenos Aires.
Año de construcción: 2024 – actualidad
Superficie del lote: 637 m2
m2 construidos: 175 m2
Cantidad de habitaciones: 3













Ubicado en una zona residencial de Pilar, dentro del barrio El Aljibe, la Casa 1 se despliega en un lote trapezoidal de esquina. El sector de implantación fue determinante en el diseño de la vivienda. Su desarrollo en planta baja se ordena siguiendo los dos ejes principales de fachada.
Perpendicular al frente se desarrolla el eje público, dedicado al espacio social, de reunión, de familia, y de esparcimiento. Su lateral derecho es de servicio y abastecimiento. Paralelo al lateral de la esquina se desarrolla el eje privado, dedicado al descanso, el estudio y el trabajo; un sector de mayor intimidad enmarcado entre pliegues de fachada que actúan como filtros, tamizando la luz y las visuales desde el exterior.
De esta forma, la casa se cierra hacia el frente y se abre hacia su patio interior tomando la franca luz del sol en los horarios oportunos. Estas decisiones de proyecto, buscan aprovechar los espacios de ocio y recreación junto al agua y la naturaleza.
La fachada se compone por tiras plegadas de hormigón y acero que moldean los dos volúmenes principales en tres dimensiones. En relación a ello, los acabados interiores reflejan el lenguaje exterior con texturas que nutren al ambiente de un acabado cálido y moderno, mientras que se mantienen adaptables en relación a la eventual dinámica familiar.
Ubicación: Barrio El Aljibe, Manzanares, Pilar. Provincia de Buenos Aires.
Año de construcción: 2024 – actualidad
Superficie del lote: 560 m2
m2 construidos: 255 m2
Cantidad de habitaciones: 3
















Ubicado en una zona residencial de Pilar, dentro del barrio El Aljibe, la Casa 2 se despliega en un lote tradicional, cercano al centro de la manzana. Su diseño en dos plantas se percibe en la lectura de bloques de hormigón horadados, interrumpidos por planos horizontales de acero y un eje vertical circulatorio.
La vivienda cuenta con una planta baja pública integrada, dedicada al espacio social, de familia y de esparcimiento, abastecida con servicios por el eje medianero. Su relación con la galería y el patio trasero invitan a disfrutar de su exterior, un lugar recreativo junto al agua y la naturaleza.
El recorrido en la escalera hacia el primer piso se enmarca con fragmentos del paisaje en la vivienda, rodeado de una pérgola de vegetación. El primer nivel, de carácter más privado, contiene las habitaciones con sus respectivos servicios y la oficina, espacios de descanso, trabajo y estudio. El interiorismo refleja el lenguaje exterior: un diseño con texturas que nutren al ambiente de un acabado cálido y moderno, manteniendo aun así la versatilidad estética y funcional que requiera la eventual dinámica familiar. Estos espacios encuentran su privacidad en sus límites con la fachada: el interior y el exterior se desdibujan con una vegetación como filtro entre estos ambientes.
Ubicación: Barrio El Aljibe, Manzanares, Pilar. Provincia de Buenos Aires.
Año de construcción: A construir.
Superficie del lote: 622.96 m2
m2 construidos: 198 m2
Cantidad de habitaciones: 3
Cantidad de baños: 3

















Ubicado en una zona residencial de Pilar, dentro del barrio El Aljibe, la Casa Patios se despliega en un lote tradicional, cercano al centro de la manzana. Su diseño en planta se desarrolla en dos tiras longitudinales que se extienden sobre el terreno hacia el jardín exterior. Estos espacios se encuentran perforados por patios internos, permitiendo el ingreso de iluminación natural y la presencia de vegetación natural en el interior del hogar.
El ala este de la vivienda es el corazón de la casa, desarrolla la zona pública y de esparcimiento: cuenta con sala de estar, comedor y cocina integrados en un amplio espacio en conexión con la galería y jardín exterior, lugares ideales para disfrutar en familia. El ala oeste es el área privada: se integra por las habitaciones con sus respectivos servicios y la oficina, espacios de descanso, trabajo y estudio.
La vivienda se encuentra interrumpida por sectores de paisaje que invaden su interior. Los patios internos articulan el recorrido y acompañan el habitar, generando un equilibrio con el interiorismo de acabados cálidos y modernos. El diseño interior se mantiene versátil, estético y funcional, apto para los requerimientos de la eventual dinámica familiar. En cuanto a la fachada exterior, se compone por dos volúmenes con diferencia de alturas que se articulan con tiras de acero plegado.